![]() |
![]() |
![]() |

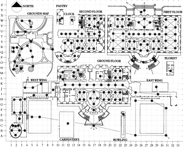
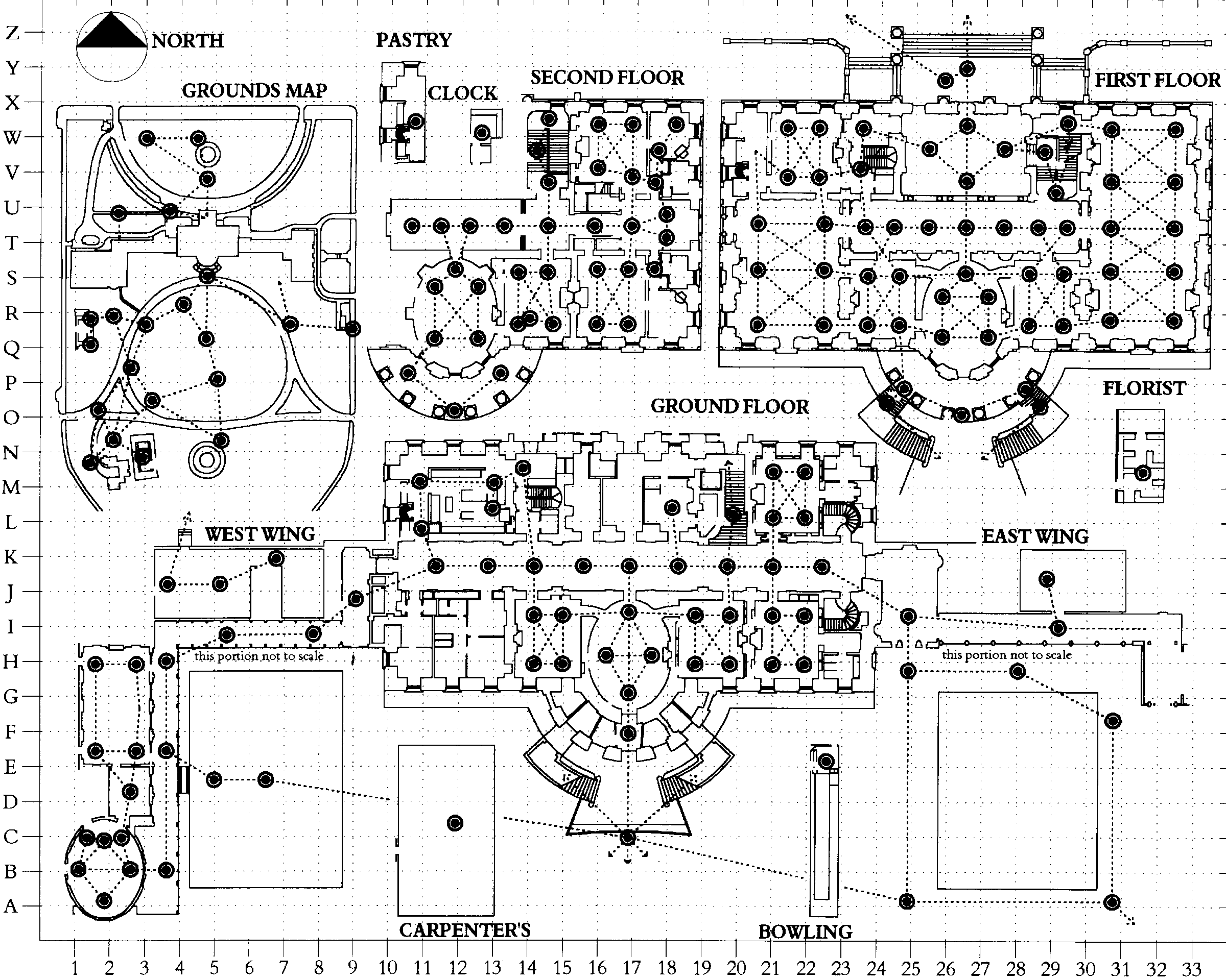
The White House Is Our House: A CD-ROM visit takes you to about 220 individual locations (nodes) within the White House or the White House Grounds. This map shows each node as a black circle, with the links between them shown as dashed lines. These links allow you to move freely throughout the White House and Grounds.
Note that this is the same map used in designing the program, and that a few more links were added prior to publication. Also note that the location of the various maps has nothing to do with their actual locations on the White House Grounds. Part of our process required that we produce a single map with all of the nodes on it. Many location compromises were made, including the shortening of the East and West Colonnades to fit the East and West Wings onto the map, and the sprinkling of space such as the Clock Shop and Pastry Shop into available space. This is a scan from a 42" wide plot hanging in our office, which was used to track the progress of the work on each node. The black circles were originally push-pins, and the dashed lines string.
The alphanumeric coordinates running up the left side and along the bottom may be used to find rooms listed on the Room Content Reference.
You may also download an 8-inch wide 563K 300-dpi Windows monochrome bitmap of this node map suitable for laser printing.
CyberToys, Inc. | The White House Is Our House | LEGO CAD | The CyberToy | Design Thingy | Home Page
©1998 CyberToys, Inc. · 1932 First Avenue, Suite 928 · Seattle, Washington 98101 · (206) 269-0579 fax: 728-2341